60 mq
2
2
ALBA ADRIATICA_NUOVA COSTRUZIONE
A SOLI 300 MT DAL MARE, in prossimità del centro cittadino, proponiamo in Vendita appartamenti trilocali in palazzina di NUOVA COSTRUZIONE.
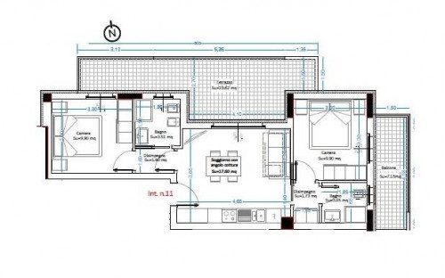
Lo stabile, in fase di realizzazione, conta 14 unità abitative, tutti appartamenti trilocali con doppi servizi, ambienti spaziosi e grandi terrazzi abitabili.
Scelte costruttive orientate al risparmio e all'efficientamento energetico: pompa di calore per impianto di riscaldamento a pavimento e raffrescamento con predisposizione per l' aria condizionata, finestre doppio vetro a taglio termico, cappotto, impianto fotovoltaico condominiale e pannelli solari per l'acqua calda. Vengono installati anche tapparelle elettriche, video citofono e portone blindato.
La soluzione tipo è così disposta internamente: ingresso su spaziosa zona giorno con cucina a vista e accesso diretto su ampio terrazzo abitabile, due camere matrimoniali e due bagni finestrati, un secondo terrazzo a servizio di una delle due camere da letto.
Possibilità di acquistare box auto e fondaco a parte.
CONTATTATECI PER AVERE PRIORITA' NELLE VISITE!
Per informazioni , visite contattare Di Gennaro Rossano 3493116014 oppure 3895404281, saremo a tua disposizione.
Se questo immobile non soddisfa entra nel nostro nuovo sito www.digennaroimmobiliare.it Vai alla sezione "Lascia La Tua Richiesta ", compila il modulo e verrai contattato da un nostro consulente che si farà carico di cercare la casa che fa per te.

60 mq
2
2