80 mq
3
2
Alba Adriatica. Nei pressi di via Abruzzo, nel cuore del quartiere Villa Fiore a poca distanza dalla spiaggia e dalle pinete, stanno iniziando i lavori per un bellissimo nuovo progetto residenziale, un' elegante palazzina che ospiterà al suo interno alloggi trilocali e quadrilocali, perfetti sia come casa al mare che come soluzione abitativa per tutto l'anno.
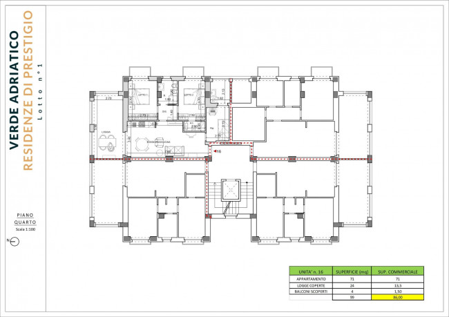
L'appartamento proposto in annuncio è una delle tipologie disponibili, un luminoso Quadrilocale con doppi servizi e terrazzo abitabile al quarto piano con ascensore. Internamente gli ambienti sono così distribuiti: ingresso su zona giorno con angolo cottura, disimpegno nella zona notte con due camere da letto matrimoniali, una terza cameretta e due bagni, di cui uno privato. Spazio di grande fascino ed eleganza sarà sicuramente il grande terrazzo loggiato, un ambiente di 20 mq per momenti di relax e svago all'aria aperta, specialmente in estate. A quest'ultimo si aggiungono altri tre comodi balconi, uno per ogni stanza da letto.
Come per tutti gli appartamenti della palazzina, materiali, forniture e rivestimenti saranno di pregio e qualità. Grande attenzione anche al risparmio energetico e al confort abitativo:
1) Impianto di riscaldamento/raffrescamento autonomo per ogni singolo alloggio e composto da una pompa di calore integrata con pannello solare termico per alimentare le linee del riscaldamento/ raffrescamento e quella dell'acqua calda sanitaria.
2) riscaldamento a pavimento e termostato gestibile anche da remoto
3)videocitofono
4)predisposizione per impianto anti intrusione
5) sanitari sospesi
6) Infissi doppio vetro a taglio termico
7)fotovoltaico condominiale ...
Disponibilità di posti auto, cantine e garage (prezzo da computare a parte)
Per i primissimi appartamenti riservati, verrà applicata una scontistica dedicata del 10% al prezzo di listino.
Il prezzo proposto in annuncio è già con sconto applicato del 10%. (prezzo di listino Euro 290.000,00)
CONTATTATECI PER AVERE PRIORITA' NELLE VISITE!
Per informazioni , visite contattare Di Gennaro Rossano 3493116014 oppure 3895404281, saremo a tua disposizione.
Se questo immobile non soddisfa entra nel nostro nuovo sito www.digennaroimmobiliare.it Vai alla sezione "Lascia La Tua Richiesta ", compila il modulo e verrai contattato da un nostro consulente che si farà carico di cercare la casa che fa per te.

80 mq
3
2