55 mq
2
1
Tortoreto LIDO. In posizione Frontemare, proponiamo in Vendita appartamenti bilocali e trilocali in fase di realizzazione. La scelta perfetta per chi desidera una casa al mare senza compromessi, in una posizione privilegiata e unica per vivere al meglio la spiaggia, il lungomare e la bella atmosfera tipica delle località di mare come Tortoreto. Lo stabile conta 14 unità abitative, tutte dotate di grandi spazi esterni abitabili.
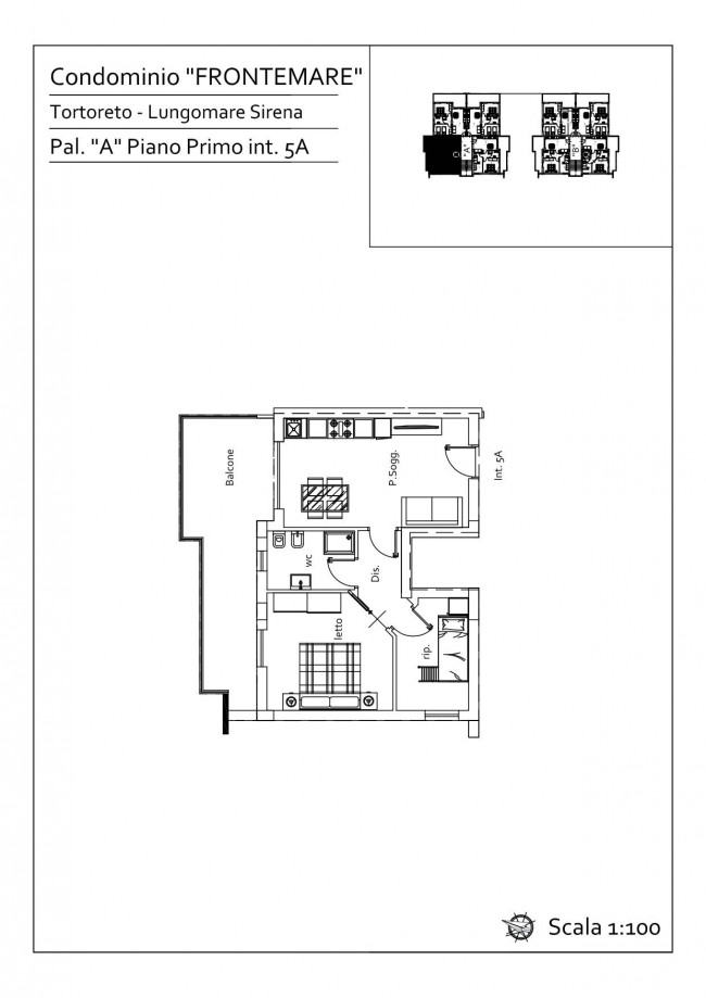
L'appartamento presentato in annuncio si trova al primo piano. Internamente è così organizzato: ingresso su ampia zona giorno con cucina a vista, disimpegno e zona notte che conta due camere da letto ed un bagno con doccia. Punto forte della soluzione è sicuramente il terrazzo abitabile vista mare, perfetto da vivere in estate.
Caratteristiche costruttive di alta qualità con impianto fotovoltaico condominiale, cappotto termico, infissi ad abbattimento acustico-termico, impianto caldo-freddo con pompa di calore a bassi consumi energetici oltre ad un'ampia scelta di capitolato e personalizzazione dell'unità immobiliare scelta. Possibilità di box auto, cantina e posto auto. I Render con le ipotesi di arredo sono puramente indicative e non sono compresi nel prezzo gli arredamenti stessi. Tutti i prezzi indicati si intendono oltre iva come per legge. CONTATTACI PER AVERE PRIORITA' NELLE VISITE! Per informazioni e visite contatta il numero 3895404281 anche su Whatsapp oppure 0861786776. Se questo immobile non soddisfa entra nel nostro nuovo sito www.digennaroimmobiliare.it Vai alla sezione "Lascia La Tua Richiesta ", compila il modulo e verrai contattato da un nostro consulente che si farà carico di cercare la casa che fa per te.

55 mq
2
1