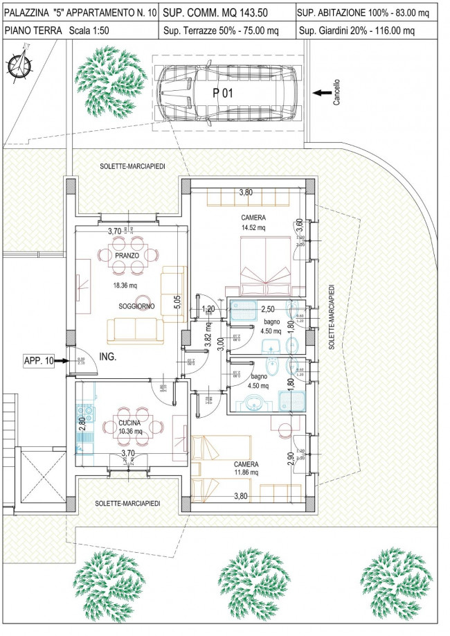
85 mq
2
2
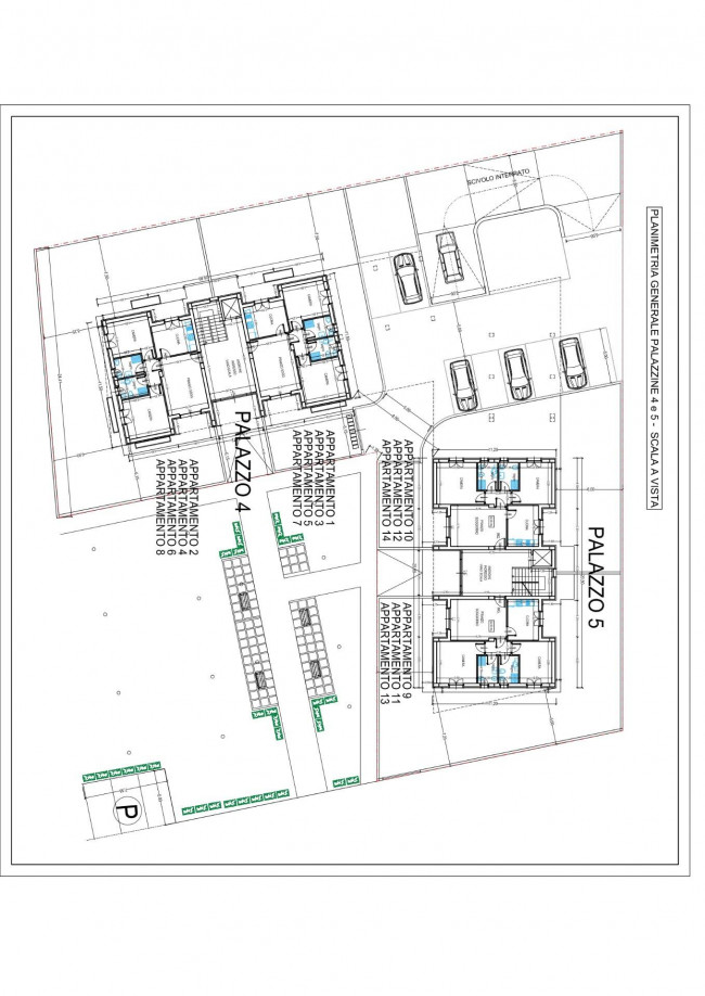
NUOVA COSTRUZIONE Tortoreto LIDO. ULTIME DISPONIBILITA'.
In zona verde e residenziale, ben collegata a tutti i servizi e alla spiaggia proponiamo in Vendita ultimi appartamenti trilocali disponibili di nuova costruzione, pronta consegna. Le unità abitative sono caratterizzate da metrature generose ed ampi spazi esterni abitabili. Materiali e forniture scelti di primo ordine, riscaldamento a pavimento, pompa di calore, impianto fotovoltaico condominiale, portoncino blindato, infissi PVC doppio vetro con tapparelle in alluminio elettrificate, videocitofono a colori...
Ancora disponibili due trilocali al piano terra con ampio giardino, corte pavimentata e posto auto privato.
L'ingresso di entrambi apre su un'ampia zona giorno con cucina a vista e doppie porte finestre che illuminano gli ambienti e permettono di accedere comodamente agli spazi esterni. Stessa disposizione per la zona notte che conta due camere da letto matrimoniali e due bagni completi e finestrati.
Punto forte sono sicuramente gli esterni, grandi spazi in parte pavimentati e in parte giardino per una superficie di circa 200 mq, un' area perfetta per momenti di relax e convivialità da vivere sopratutto in estate.
Soluzioni perfette per uso residenziale, ottime anche come case al mare per chi desidera ambienti ampi e confortevoli e anche in vacanza preferisce contesti verdi, tranquilli e residenziali.
Disponibilità di posti auto o garage da computare a parte.
CONTATTACI PER AVERE PRIORITA' NELLE VISITE.
Per informazioni e visite contatta il numero 3895404281 anche su Whatsapp oppure 0861786776.
Se questo immobile non soddisfa entra nel nostro nuovo sito www.digennaroimmobiliare.it Vai alla sezione "Lascia La Tua Richiesta ", compila il modulo e verrai contattato da un nostro consulente che si farà carico di cercare la casa che fa per te.
85 mq
2
2